11月1日(土)2日(日) 家事も暮らしもスマートに。平屋という選択 藤枝市@平屋完成見学会 開催終了
| 開催日 | 11/1(土) 11/2(日) |
|---|---|
| 開催場所 | 藤枝市時ケ谷398-18 |
| 時間 | 10:00~16:00 |
| このページのQRコード |
毎日の家事をスマートに、心地よい暮らしへ。
平屋ならではの動線と収納計画で、家事の流れをもっと快適に。
見学会で、あなたの理想の暮らしを実感してください。
3つの注目POINT
家事動線をスマートに設計した、毎日がスムーズな暮らし方。
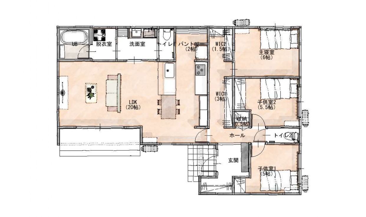
帰宅後は荷物をWICにしまい、キッチンからパントリーへ。
リビングから洗面、独立脱衣室を経てUBへとつながる動線で、洗面を使っていてもお風呂のプライバシーが守られる設計です
狭さを感じない光のLDK
大きな窓から光がたっぷり差し込み、実際の面積以上に広がりを感じるリビング。家族が自然と集まる、心地よい空間です。
デザインと機能性が融合
洗練されたインテリアの中に、収納や動線など実用性をしっかり確保。美しさと暮らしやすさを兼ね備えた住まいです。

間取り

暮らし方のご提案

1. 光あふれるリビングで「集う暮らし」
南向きの大きな窓から差し込む光で満たされたLDKは、家族や友人が自然と集まる舞台。オープンダイニングで朝はカフェのように軽やかに、夜はワインを傾けながら映画を楽しむ大人の時間に。広がりのあるリビングは“人が集まるたびに表情を変える空間”として機能します。

2. スマート動線で「ゆとりを楽しむ暮らし」
玄関からすぐにLDKへアクセスでき、さらにパントリーへとつながるスムーズな動線。
買い物帰りも家事もスマートに完結します。
移動のムダが少ないからこそ、浮いた時間で趣味や読書をゆっくり楽しめる。
効率と美しさが調和した家事動線で、毎日をストレスフリーに。

3. プライベートを大切にする「穏やかな暮らし」
主寝室と子ども部屋を離して配置し、プライバシーをしっかり確保。
主寝室にはWICを兼ね備え、生活リズムの異なるご夫婦でも気兼ねなく収納や身支度ができる設計に。



脱衣室と洗面を分けることで、プライベート空間をしっかり確保。
脱衣室と洗面を独立させることで、家族が同時に使いやすく、プライバシーも守れます。
忙しい朝や入浴時間も、ストレスなく過ごせる間取りです。
Sample Content
Sample Content








